24小時服務熱線
0523-88155521
138-0142-0013?

Product Center
------------
聯系電話
------------
0523-88155521
138-0142-0013?
1、直埋(YGTZ型)波紋補償器(膨脹節)說明
直埋波紋補償器(膨脹節)具有以下特點:
1、產品自帶密封的保護罩.可直埋于地下.不必配置小井。
2、產品自帶限位機構.設計管線時不必設置用于分割補償的次固定支架。
3、產品自帶內壓推力承力構件.管線分段試壓時不必配置固定支架。
4、產品具有雙向導流功能.安裝無方向要求。
5、便于施工.安裝。節省投資。
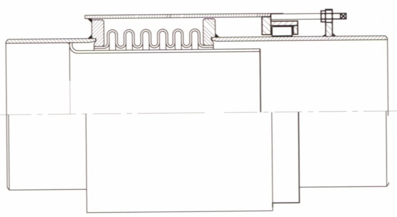
2、結構簡圖

3、產品代號示例

4、安裝注意事項
(1)出廠時產品均已作50%預拉伸.安裝時不必再預拉。
(2)現塌安裝完后。必須拆除螺桿外側的螺母。
(3)產品帶有限位機構.分段試壓時不必再設置固定支架。
(4)試壓后,產品與管道的焊接部位應補做保溫外套。
設計壓力0.6Mpa



設計壓力1.0Mpa




地址:
電話:138-0142-0013? 181-1596-9597
傳真:0523-88155521
郵箱:jstzty999@163.com
您可以掃描左側二維碼
添加我為好友
微信:江蘇天煜
*廣告詞說明:本網站介紹上顯示的廣告法規定極限(錯別字是為避免廣告法排查工具誤導)詞,只在本網站范圍內對比,且僅作為產品內容介紹使用,非廣告宣傳用語!*
*本站相關網頁素材及相關資源部分來源互聯網,如有侵權請速告知,我們將在24小時內刪除*
